N 4th Street, Jesup, GA

$399,998

Previous Next

67.14

Acres

About N 4th Street

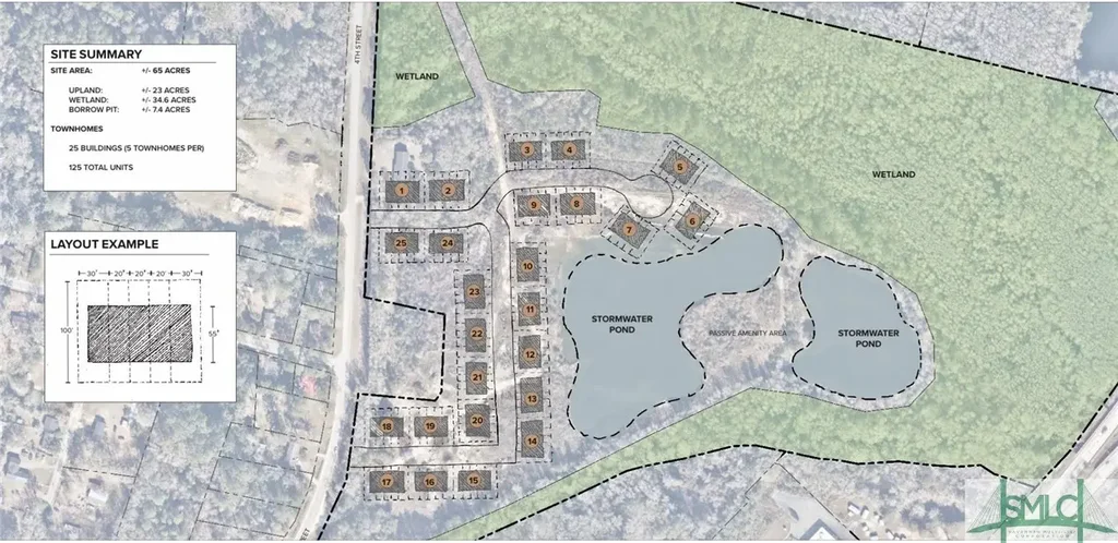
A 67-acre oasis ready for your design. Preliminary groundwork performed for 125 town home units. Surveys and conventional renderings as well as a topographical map of build available upon request. Portions of the property are wooded and there is a pond on the property as well. Located in the developing Wayne County in Jesup. This land is zoned as Agricultural.

Features of N 4th Street

MLS # 322289
Price $399,998
Square Footage 2924618
Acres 67.14
Type Land
Sub-Type Land
Status Active

Community Information

Address N 4th Street
City Jesup
County Wayne
State GA
Zip Code 31545

Amenities

Utilities Sewer Not Available
Is Waterfront No
Has Pool No

Interior

Fireplace No
Has Basement No

Additional Information

Date Listed November 15th, 2024
Short Sale No
RE / Bank Owned No

Listing Details

AgentDavid M. Johnson
OfficeeXp Realty LLC

Listing Map

Request a Showing

Provide a valid email address.
When would you like to view this property?